Yaşam tarzınızı değiştirmeye Kovan Yapı ile başlayın!

Telefon:
0216 526 05 25

Ürün Bilgileri

Kategori :
İki Katlı Prefabrik
Ölçü :
105 m²
AMASRA
AMASRA
AMASRA

AMASRA

95 + 10 m2 veranda iki katlı prefabrik konut

Siz nerede olmak isterseniz, eviniz orada hazır. Karar sizin, belki denizden esen bir rüzgar karşılar sizi ya da çam ağaçlarının yaydığı muhteşem kokuyla güne başlarsınız.

İki Katlı Prefabrik

Prefabrik villa, inşaat sürecinin büyük bir kısmı fabrika ortamında üretilen ve ardından şantiyede birleştirilen lüks yaşam alanlarıdır. Genellikle estetik, dayanıklılık ve enerji verimliliği sağlamak amacıyla tasarlanır. Prefabrik villalar, hızlı montaj, düşük maliyet ve çevre dostu malzemelerle inşa edilebilmesi gibi avantajlar sunarak, modern ve sürdürülebilir yaşam çözümleri oluşturur.

Dubleks Prefabrik Ev Fiyatları ve Modelleri
Farklı müşteri beklentisine uygun üretilen prefabrik ev modellerinden biri de dubleks evlerdir. Çift katlı prefabrik evler hem şık hem de dayanıklı yaşam alanı ile istediğiniz ev konforunu sunar. Prefabrikten olarak dubleks prefabrik ev modelleri ve fiyatlarına dair tüm detayları burada bulabilirsiniz.

Güvenli ve Konforlu Dubleks Prefabrik Ev Modelleri
Dubleks prefabrik ev beklentisini karşılayan tüm modeller, farklı tasarım özelliklerine göre tasarlanmıştır. Hızlı üretim avantajı ile birlikte hızlı kuruluma da sahip bu modeller, betonarme yapıların zaman ve maliyet kaybının önüne geçer. Daha ekonomik bir seçenek olan dubleks prefabrik ev modelleri, kullanılan dayanıklı ve kaliteli malzemeler eşliğinde kurulum özelliğine sahiptir. Hızlı montajlanan farklı metrekarelerdeki bu evler, geniş bir ev isteğini karşılayan ferah ve konforlu odaları ile öne çıkar.

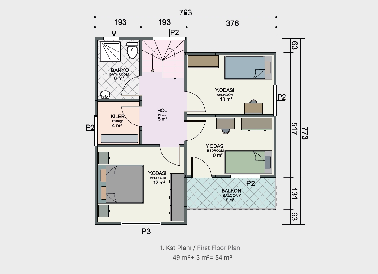
İki katlı prefabrik modeller, 82 metrekareden 158 metrekareye uzanan çeşitliliğe sahiptir. Farklı oda planlarına da sahip bu modeller, 50 yıla ulaşabilen dayanıklılık özelliğiyle tercih edilir. Müşterilerimiz isteği ve ihtiyaçlarına yönelik tasarladığımız dubleks prefabrik evlerde, 2+1’den başlayan oda seçeneklerini barındırır.

Sunduğumuz tüm dubleks modeller için geniş çaplı hizmetler sunuyoruz. Bu doğrultuda, yapının iç ve dış cephe boyalarını, kapı montajını, enerjı tasarrufu sunan PVC pencere kurulumu tamamlanır. Bunun yanı sıra evin altyapı ihtiyaçları da eksiksiz şekilde yapılır. Sıvı altı elektrik ve tesisat düzenlemeleri ve evin su geçirmezliği için yalıtım desteği sunulur.

Tüm hizmetler, dubleks prefabrik evin yüksek kalite standartlarına uygun şekilde kullanılmasına yöneliktir. Hayalinizdeki çift katlı ev konforunu Kovan House’in özenle sunduğu dubleks evleri ile bulabilir, tasarım özelliklerine göre uygun ev modelini seçebilirsiniz.

Prefabrik Dubleks Ev Planları
Farklı oda seçeneklerini barındıran dubleks prefabrik evler, bu doğrultuda farklı metrekarelik planları içerir. Kovan House’de görebileceğiniz dubleks evler, metrekare bazında ev planlarına sahiptir. Fiyat ve konfor açısından en uygun modelleri sıraladığımız dubleks kategorimizde, ev planlarını detaylı olarak inceleyebilirsiniz.
Dubleks ev metrekarelerine göre değişen fiyatlarına göz atabilir, paylaştığımız prefabrik bina kesitlerine bakabilirsiniz.

Şimdi Ara 0216 526 05 25