Yaşam tarzınızı değiştirmeye Kovan Yapı ile başlayın!

Telefon:
0216 526 05 25

Ürün Bilgileri

Kategori :
Tek Katlı Prefabrik
Ölçü :
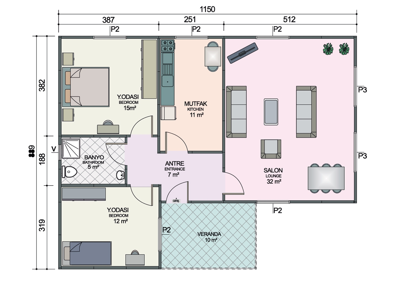
93 m²
MANAVGAT
MANAVGAT

MANAVGAT

83 + 10 m2 veranda tek katlı prefabrik konut

Her gününüzü, doğanın kalbinde, rahatlatan, heyecan veren bir yolculuğa çıkıyormuş gibi yaşayın.

Tek Katlı Prefabrik

Prefabrik Tek Katlı Ev

Gazçelik Acil Deprem Konutları, Kovan House olarak güvenli ve dayanıklı yaşam alanları sunma amacımızla tasarlanmıştır. Deprem gibi afetlere karşı yüksek koruma sağlayan gazbeton ve çelik konstrüksiyon kombinasyonunu kullanarak, hızlı ve etkili bir şekilde sağlam konutlar inşa ediyoruz. Bu yapılar, dayanıklılıkları ve hızlı montaj süreçleriyle acil durumlarda güvenli barınma çözümü sunarken, aynı zamanda çevre dostu ve sürdürülebilir özelliklere sahiptir. Kovan House olarak, her türlü afet koşuluna karşı güvenli, sağlam ve konforlu yaşam alanları oluşturmayı hedefliyoruz.

Özellikler

  • Alko / Knott / Çayırova Tandem Torsiyonlu Dingil Seti
  • Alko / Knott / Çayırova Kaplin, Fren, Jant, Lastik ve Kriko Seti (4 Adet)
  • Römork Üretiminde Kullanılan Performans Çeliği Şase
  • 7 Pin Römork Soketi Ve Led Elektrik Sinyalizasyon Komponentleri E-belgeli
  • Isı Yalıtımlı Tamperli Confort Cam Kapı Ve Pencereler (pvc)
  • Dekor Kaplı Bakım Gerektirmeyen Kontra iç Duvar Kaplamaları
  • Tüm Zemin Laminat Parke ve Yerden Isıtma Sistemi
  • Yanmaz Kablo ve Kablo Kanalları, 220 Volt Elektrik Tesisatı
  • Led Spot Tavan Aydınlatmaları ve Dış Mekan Led Aydınlatmaları
  • Römork Üretiminde Kullanılan Performans Çeliği Şase
  • Tv Uydu Alt Yapı Sistemi
  • Banyo Dolabı / Yatak Odası Dolapları / Mutfak Dolapları


Model Loca 1+1
Kovan House ailesinin üyesi Loca 1+1, doğayla iç içe yaşam arayanları bekliyor. Yatak odası, oturma odası , mutfak ve banyosu ile 8.50m*2.55m ölçülerindeki bu ev, fonksiyonellik düşünülerek tasarlandı. Loca modelimiz, yaşam alanınızı tamamen kendi ihtiyaçlarınıza göre şekillendirebileceğiniz bir özellikle karşınızda. Oturma bölümünden ve yatak odasından öne doğru açılan kanatlar, içeriye daha fazla ferahlık ve kullanılabilir alan getiriyor. Bu sadece yaşam alanınızı düzenlemekle kalmıyor aynı zamanda geniş bir atmosfer yaratıyor. Hareket özgürlüğü ve esneklik isteyenler için ideal!

Loca 1+1 in öne doğru açılan 2 adet kapsülü bulunmaktadır. Bu kapsüllerden biri oturma odası olarak düşünüldü ve mutfak ile beraber kullanılarak esnek bir kullanım alanı sağlıyor. Diğer kapsül ise yatak odasından öne doğru açılarak alanın genişlemesine olanak sağlıyor ve bu kapsül kullanıcı ihtiyacına göre şekillendirilebiliyor. Kullanıcı isteğine göre ister makyaj odası olarak ister çalışma odası olarak kullanım seçenekleri sunuyor. Yatak odasına ait fazla depolama alanları ile kullanıcıya avantaj sağlıyor. Loca 1+1 , açılan kapsülleri sayesinde genişleyerek size 1+1 ev kullanım konforu sağlıyor.
Loca 1+1, geniş pencereleri ve açık konsept tasarımıyla doğal ışıkla dolu, ferah bir yaşam alanı sunuyor. İçinde ve dışında, huzurlu doğa manzarası eşliğinde yaşamın tadını çıkarabilirsiniz.
Loca 1+1 ile, doğaya yakın, sade ve şık bir yaşamın kapılarını aralayın. Duvarların ötesinde, özgürlük ve huzurla dolu bir atmosferde sade yaşamın keyfini çıkarın!

Dayanıklı
Gazçelik evler, çelik malzemenin sağladığı dayanıklılığı, gazbetonun hafiflik ve izolasyon özellikleriyle birleştirerek yüksek verimli yapılar sunar. Gazbeton, yangına ve suya karşı dirençli olup, çelik ile birleştiğinde depreme karşı mükemmel bir dayanıklılık sağlar. Bu yapılar, güçlü rüzgârlar, şiddetli yağışlar ve ani sıcaklık değişimlerine karşı oldukça dirençlidir. Gazçelik evlerin sağlam yapısı, onları uzun ömürlü hale getirirken, doğal afetlere karşı da güvenli bir seçenek oluşturur. Aynı zamanda, bu evlerin bakım ihtiyaçları minimum seviyededir, çünkü malzemeler zamanla aşınmaya veya deforme olmaya karşı direnç gösterir. Bu nedenle, gazçelik evler, hem güvenli hem de dayanıklı yaşam alanları arayanlar için ideal bir tercihtir.

Modern
Gazçelik evler, modern mimarinin en dikkat çekici örneklerinden biridir. Hem estetik hem de fonksiyonel açıdan çağdaş tasarımlara olanak tanıyan bu yapılar, sade ve şık hatlarıyla günümüzün ihtiyaçlarına cevap verir. Çelik ve gazbetonun birleşimi, geniş iç mekanlar, büyük pencereler ve açık plan yaşam alanları yaratmaya imkan sağlar. Ayrıca, gazçelik evler, çevre dostu ve enerji verimliliği yüksek özellikleriyle modern yaşamın gereksinimlerini karşılar. Yüksek ısı yalıtımı ve enerji tasarrufu sağlayan malzemeler, bu evleri sürdürülebilir bir seçenek haline getirir. Modern yaşam tarzını yansıtan zarif tasarımlar ve teknolojik altyapılarla donatılmış gazçelik evler, rahat ve verimli yaşam alanları sunar.

Hızlı
Gazçelik evler, hızlı inşa edilme özellikleriyle dikkat çeker. Çelik ve gazbetonun birleşimi, yapıların daha kısa sürede tamamlanmasını sağlar. Bu malzemelerin hafifliği ve kolay işlenebilirliği, inşaat sürecini büyük ölçüde hızlandırır. Ayrıca, prefabrik sistemlerle üretildiğinde, montaj süreci oldukça hızlı ve verimli hale gelir. Bu sayede, gazçelik evler, acil konut ihtiyaçları veya zaman kısıtlaması olan projelerde mükemmel bir çözüm sunar. Hızlı inşaat süreçleri, maliyetlerin düşmesine ve daha kısa süre içinde kullanıma hazır yapılar ortaya çıkmasına olanak tanır.

Ekonomik
Gazçelik evler, ekonomik açıdan sundukları birçok avantajla öne çıkar. Çelik ve gazbeton gibi dayanıklı malzemelerle inşa edilen bu yapılar, uzun ömürlü olmaları sayesinde bakım ve onarım masraflarını minimize eder. Ayrıca, gazçelik evler, enerji verimliliği sağlayan ısı yalıtımı özellikleriyle düşük enerji tüketimi sunar, bu da aylık enerji faturalarını önemli ölçüde azaltır. Hızlı inşaat süreçleri, iş gücü ve malzeme maliyetlerinden tasarruf edilmesine yardımcı olur. Prefabrik üretim yöntemleri sayesinde üretim ve montaj aşamaları daha kısa sürede tamamlanır, bu da toplam inşaat maliyetlerini düşürür. Sonuç olarak, gazçelik evler, düşük maliyetli ve sürdürülebilir yaşam alanları arayanlar için ekonomik bir çözüm sunar.

Şimdi Ara 0216 526 05 25