Yaşam tarzınızı değiştirmeye Kovan Yapı ile başlayın!
Telefon:
0216 526 05 25
E-Posta:
info@kovanyapi.com
Adres:
Çamlık Mah. Turan Emeksiz Sok no:23 Ümraniye /İSTANBUL
Adres:
Dilovası OSB. 2012 Sok. No:2/1 Dilovası/ KOCAELİ
Anasayfa
Kurumsal
Manifestomuz
Üretim Kapasitesi
Merak Ettikleriniz?
Belgeler
Bizden Haberler
Hizmetler
Gazçelik Yapı
Prefabrik Yapı
Modüler Yapı
Projeler
Devam Eden Projeler
Tamamlanan Projeler
Merak Ettikleriniz?
İletişim
Maliyet Hesaplama Sihirbazı
Maliyet Hesaplama Sihirbazı
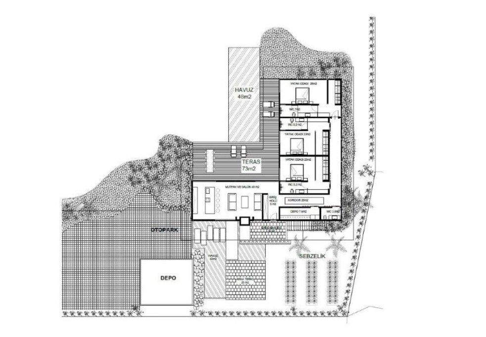
124 m² Tek Katlı GazÇelik Ev
Anasayfa
Projeler
Tamamlanan Proje
Proje Bilgileri
Başlangıç Tarihi :
30.05.2024
Bitiş Tarihi :
24.08.2024
Müşteri :
Bilal Bey
Kategori :
GazÇelik Ev
Ölçü :
124 m²
Yer :
Çanakkale - Bayramiç
124 m² Tek Katlı GazÇelik Ev
Copyright 2025 -
Kovan Yapı
Şimdi Ara
0216 526 05 25