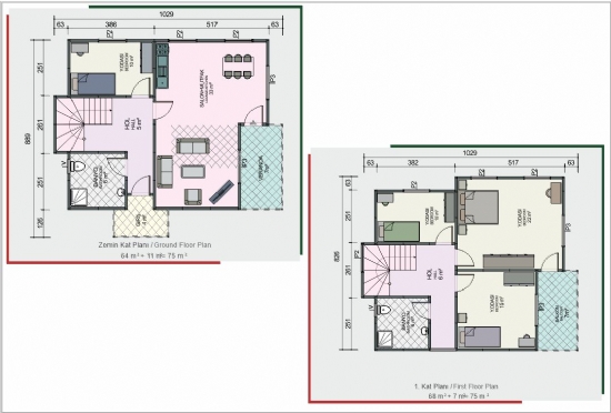
150 m² Modern ve Fonksiyonel Yaşam Alanı
KVN-2150 Gazçelik Yapı, Kovan Yapı’nın yenilikçi Gazçelik yapı teknolojisi ile tasarlanmış, 150 m² brüt alana sahip modern ve fonksiyonel bir yaşam alanıdır.
Çelik konstrüksiyonun yüksek dayanımı ile gazbetonun ısı ve ses yalıtım konforunu bir araya getirerek; hem güvenli hem de estetik bir konut çözümü sunar.
Bu model; küçük aileler, tatil evi, ofis ya da kiralık yatırım projeleri için ideal bir tercihtir.
Genel Özellikler
-
Toplam Brüt Alan: 150 m²
-
Salon: 33 m²
-
Yatak Odası: 57m²
-
Banyo: 12 m²
-
Veranda 7 m²
Fonksiyonel planlaması sayesinde ferah ve kullanışlı yaşam alanları sunar.
Geniş veranda, iç ve dış mekân arasındaki geçişi estetik ve keyifli hale getirerek yaşam alanını zenginleştirir.
Gazçelik Yapı Teknolojisi ile Güçlü ve Hızlı Çözüm
Gazçelik Yapı, Kovan Yapı tarafından geliştirilen; çeliğin taşıyıcı gücü ile gazbetonun konfor avantajlarını birleştiren mühendislik odaklı bir yapı sistemidir.
Bu sistem sayesinde:
-
Depreme dayanıklı taşıyıcı sistem,
-
Güçlü ve uzun ömürlü temel sistemi,
-
300 cm kat yüksekliği ile ferah yaşam alanları,
-
Buatsız ve gizli elektrik altyapısı,
-
Üst düzey ısı ve ses yalıtımı,
-
100 yılın üzerinde hedeflenen yapı dayanımı
sunularak uzun ömürlü, güvenli ve konforlu yaşam alanları oluşturulur.
Fiyat teklifi almak ve projenizi birlikte planlamak için bizimle iletişime geçin.
Güvenli, konforlu ve modern yaşam alanınızı bugün tasarlamaya başlayın.
ÜRÜNÜN ADI
|
TEKNİK ÖZELLİKLER
|
MARKA VEYA MODEL
|
TEMEL
|
Projeye uygun yükseklikte su basmanı oluşturulurken, temel dört tarafı ve ortadan artı şeklinde bağlanan 25 cm genişliğinde perde duvarlarla desteklenir. Perdelerin içerisine 12'lik ve 8'lik demir donatı yerleştirilir ve C35 beton dökülür. Ardından, temel içerisi dolgu taşı ve mıcır ile doldurulur, üzerine hazır çesan yerleştirilir. Son olarak, 15 cm kalınlığında tabliye betonu dökülerek temel tamamlanır.
|
C35 HAZIR BETON
|
DUVARLAR
|
İç ve dış duvarlarda, 1.5 mm galvaniz çelik karkas kullanılarak, gazbeton sıkıştırma yöntemiyle uygulanmaktadır. İç bölücü duvarlarda 10 cm, dış duvarlarda ise 15 cm gazbeton tercih edilmektedir. Vidalı sistemin kullanıldığı yapıda, montaj için trapez vidalar kullanılmaktadır.
|
Y TONG-NUH BETON
|
SIVA VE BOYA
|
Tüm dış duvarlara bir kat kalekim uygulanarak üzerine 3 cm EPS ısı yalıtım levhaları yapıştırılır. Ardından, levhaların üzerine fileli kalekim çekilir ve dekoratif 3 mm sıva uygulanır. Son olarak, dış cepheye iki kat boya yapılır. Yapı içinde ise tüm duvarlara ve tavana fileli alçı, sıva ve saten sıva çekilir ve iki kat boya ile tamamlanır.
|
DYO-FİLLİ BOYA-EPS 3 CM MONTALAMA(FLEX)
|
KAPILAR
|
Yapı içindeki tüm oda kapıları, 10 cm genişliğinde kasa ve 90 cm genişliğinde Amerikan panel kapı şeklinde yapılacaktır. Dış mekan kapısı ise dayanıklılık ve güvenlik açısından kompozit çelik kapı olarak seçilecek olup, ölçüleri 100x210 cm olacaktır. Bu şekilde hem iç mekanın estetiği hem de dış mekanın güvenliği sağlanacaktır
|
AMERİKAN PANEL KAPI BİRDAL ÇELİK KAPI
|
PENCERELER
|
Projede kullanılan pencerelerin tamamı, beyaz, antrasit ve ahşap renk seçenekleri ile alüminyum veya plastik doğrama yapılabilmektedir.Tasarlanan doğramaların tamamı (4+12+4) çift ısı cam özelliğine sahiptir.
|
ADOPEN-ASAŞ-ŞİŞE CAM
|
SERAMİK VE VİTRİFİYE
|
Daire içindeki tüm zeminlere, yüzeyin düzgünleştirilmesi ve dayanıklılığın artırılması amacıyla 7 cm şap uygulanacaktır. Islak zemin alanları, dayanıklılık ve suya karşı direnç sağlamak için seramik kaplama ile tamamlanacaktır. Islak hacimlerde
lavabo, klozet, duş teknesi ve evye gibi vitrifiye ürünleri modern, dayanıklı ve su tasarruflu olacak şekilde seçilecek,
montajları işlevselliği ön planda tutarak yapılacaktır
|
VİTRA-BİEN-ÇANAKKALE
|
ŞAP VE PARKE
|
Daire içindeki tüm zeminlere, yüzeyin düzgünleştirilmesi ve dayanıklılığın artırılması amacıyla 7 cm şap
uygulanacaktır.Mutfak, salon, koridor ve odalar gibi diğer yaşam alanlarında estetik ve sıcak bir görünüm sunan laminat parke kullanılacaktır. Böylece, her alanın kullanım amacına uygun bir zemin kaplaması sağlanacaktır.
|
AGT-ÇAMSAN
|
ELEKTRİK TESİSATI
|
Yapı da elektrik tesisatı, güncel standartlara uygun olarak yapılacaktır. Anahtar ve priz grupları modern tasarımlı, güvenli ve dayanıklı malzemeden seçilecektir. Aydınlatma için tavan ve duvarlara gerekli elektrik hatları çekilecek, mutfak, banyo ve
diğer alanlarda yeterli sayıda priz yerleştirilecektir. Tesisatta topraklama sistemi bulunacak, kaçak akım rölesi kullanılarak güvenlik artırılacaktır. Tüm elektrik ekipmanları enerji tasarrufunu destekleyecek şekilde tercih edilecektir.
|
VİKO-SIEMENS-ÖZNUR
|
SU TESİSATI
|
Dairelerde su tesisatı, kaliteli ve uzun ömürlü malzemelerle yapılacaktır. İç mekanlarda sıcak ve soğuk su hatları ayrı ayrı düzenlenecek, gerekli tüm bağlantılar güvenli şekilde sağlanacaktır. Banyolarda, mutfakta ve diğer ıslak hacimlerde suyun düzgün ve verimli akışını sağlamak için uygun boru çapları seçilecektir. Tesisat, su tasarrufu sağlayan armatürler ve vanalarla donatılacak, su kaçaklarını önlemek amacıyla dikkatli bir montaj yapılacaktır.
|
FIRAT PLASTİK-VİTRA
|
ÇATI
|
Çatı tesisatı, dayanıklılığı artırmak ve sızdırmazlık sağlamak amacıyla yüksek kaliteli malzemelerle yapılacaktır. Çatıda su yalıtımı için uygun örtüler kullanılacak, suyun çatıyı terk etmesini sağlamak için uygun eğim verilecektir. Damlama, su giderleri ve yağmur olukları, suyun çatıda birikmesini önleyecek şekilde yerleştirilecektir. Ayrıca, çatı izolasyonu yapılacak, enerji verimliliğini artırmak amacıyla ısı yalıtımı BOR YALITIM ile sağlanacaktır.
|
ONDULİNE-YILBOR-FIRAT PLASTİK
|